Description
- Incredible planning permission granted
- Approval for c.10,000 sq ft house plus swimming pool
- Beautiful setting
- c. 3 acre plot
- Discreet location off Holbrook Lane
- 0.3 miles to Royal Parade
- Full plans available
- Call to arrange a site visit to see the plot and the existing house
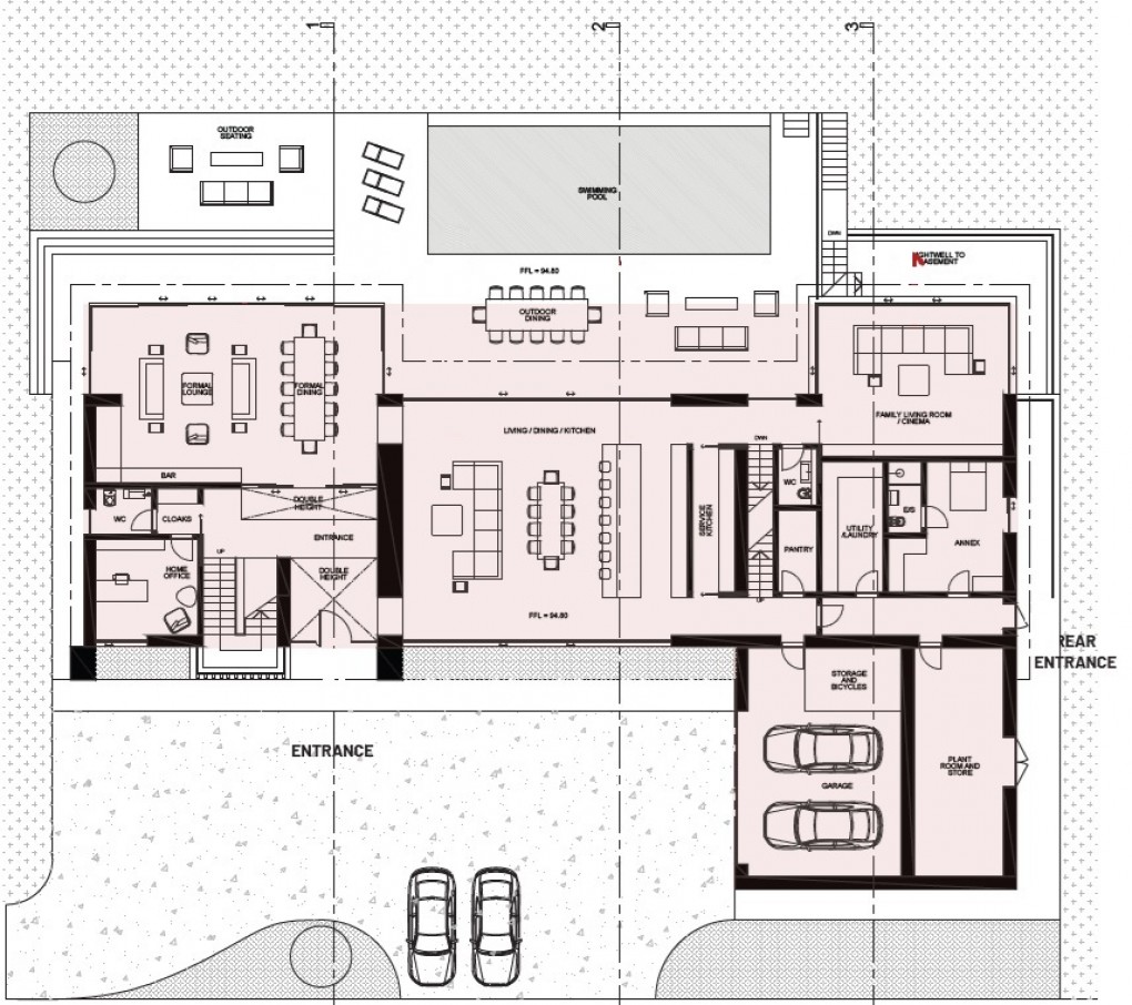
The magnificent plans of the approved house include five impressive bedrooms to the first floor, all with an en suite. The principal bedroom suite includes twin en suite bathrooms and twin dressing rooms, and bedroom five also has a dressing area.
A ground floor annex which can be accessed from its own external door, or from within the house, provides a further bedroom and en suite, and there is a utility room.
The plans show a wealth of ground floor reception space including formal, informal and outdoor lounge and dining areas by the swimming pool, a home office and a large main kitchen with a secondary service kitchen as well.
A lower ground floor leisure level adds another dimension to this wonderful opportunity with space for a gym, wine cellar, bar and lounge area.
The current single-storey family home provides extensive accommodation including six bedrooms, four bathrooms, generous reception space and the extensive private garden and private woodland to enjoy.
Location wise this is a prized and well-connected position within a 20 min drive to the M25, 40 min drive to Gatwick or City airports, 5 min drive to Chislehurst station.
As well as being local Royal Parade, Chislehurst High Street is only 0.8 miles away with a wide selection of eateries, independent shops and practical facilities.
A wealth of local schools includes Farringtons School, St. Nicholas Church of England Primary, Mead Road Infants and Bromley High School.
NB: Any journey times/distances given are approximate and have been sourced from Google Maps and Trainline.com
PROPERTY INFORMATION
• Electricity: Mains supply
• Gas: Mains supply
• Heating: Gas
• Sewerage: Mains drainage; metered water
• Council Tax: Bromley Borough Band H
• This is a Conservation Area
• Main images are CGI's of the approved house
Floorplan
EPC
To discuss this property call our Chislehurst Office
Material Information
- Council Tax Band: H
- Local Authority: London Borough of Bromley
- Tenure: Freehold
- All Other: Ask Agent